The job you can realize in one pass as below:
1. deep embossing+deep embossing
2. deep embossing+die cutting+stripping+blanking

Feeder(4 suction and 6 delivery)
The paper feeding unit, designed based on an advanced technology platform, ensures precise, stable, and reliable performance, enabling smooth transportation of various paper types—from 80g thin paper to corrugated cardboard up to 4mm thick.

Ultrasonic double sheet detector
Ultrasonic double sheet detection system with effortless calibration, precise operation, and protection against surface scratches.

Carbon fiber gripper bar
High-tech carbon fiber gripper bar, driven by a large-angle intermittent mechanism, ensures smooth paper feeding with multi-imposition layouts and minimal connection points, delivering high productivity with minimal plate scattering.Safety gripper chain lock automatically secures the gripper drive chain during production stops, malfunctions, or safety device activation, ensuring operator safety.
.jpg)
Servo controlled gripper bar positioning device
Servo control system is adopted for the rear positioning of gripper bar, and the accuracy of each gripper bar can be adjusted by PLC touch screen button to ensure the accuracy of gripper bar, with permanent accuracy of ±0.075mm (Invention Patent).

Micro-adjustable honeycomb plate
20-Zone Independent Temperature Control System ensures precise heating of the hot stamping plate, delivering balanced and stable temperature distribution across the entire heating system. Maximum stamping pressure reaches 600 tons.

Micro-adjustable die cutting plate
5mm hardened cutting plate or 4+1mm sandwich plate on top of 15mm precision synthetic supporting plate with +/-0.9mm micro adjustment device for quick set up and easy change over.

Micro-adjustable frame with quick locking device
Adopt the center line quick positioning installation device, and the stripping board can quickly installed.

Advanced plate quick locking device
Advanced quick tooling set up system ensures fast plate change over and hence high productivity at stripping stations.
.jpg)
Main unit cooling/lubrication mechanism
Automatic oil pumping circulation cooling device ensures the lubrication of the main machine during long-term high-speed operation and maintains the normal temperature of the lubricating oil of the main machine.

Full sheet delivery
Full sheet delivery system enables flexible production scheduling to accommodate diverse order structures.

Auto separation sheet insert
Automatic counter and separating sheet inserter with electronic position sensor at blanking station.

Non-stop sampling
The sampling function allows one-button removal of sample sheets on-the-fly, enabling effortless operation without stopping production.

Germany vaccum pump
Blow-suction dual-purpose vacuum pump of German Becker brand.

Auto lubrication system
The whole machine adopts a centralized automatic oil supply system to ensure that the transmission parts are not short of oil.
| Conveying Unit | BHT-2S1060RRSCE |
| 01. Non-stop high-speed paper feeding section | 〇 |
| 02. Fish-scale powerful paper suction feeder head with 4 suction and 6 delivery. The suction head can be adjust to various suction angles according to the deformation of the paper | 〇 |
| 03. Adjustable suction blower, suction head and air separation valve processed with ultra-hard alloy | 〇 |
| 04. Triple feeder head anti-collision device | 〇 |
| 05. Horizontal paper separation blower | 〇 |
| 06. The main and auxiliary stacking tables alternate without stopping, and the feeder operates without stopping | 〇 |
| 07. Electrical left/right fine-tuning device for the main feed pile | 〇 |
| 08. The pre-stacking device is equipped with rails so that the operator can accurately and conveniently send the stack of paper into the feeder | 〇 |
| 09. The paper alignment adjustment device can manually adjust the distance before the paper reaches the gauge without stopping the machine | 〇 |
| 10. Large inclined paper table, suitable for high-speed conveying of thin paper and curved paper | 〇 |
| 11. Slowdown mechanism for sheet feeding at the front gauge | 〇 |
| 12. Ultrasonic double sheet detection system with effortless calibration, precise operation, and protection against surface scratches | 〇 |
| 13. Four front gauges can be adjusted individually | 〇 |
| 14. Paper pressing device, more smoothly send the curved paper to the front gauge | 〇 |
| 15. Push-pull dual-purpose side gauges, one set for the operation side and one set for the transmission side. Side gauges can be adjusted between push-pull gauges to meet different paper requirements | 〇 |
| 16. Photoelectric detection of side gauge and front gauge | 〇 |
| 17. Imported paper feeding belt and stainless steel transfer plate | 〇 |
| 18. Pneumatic lifting device for paper feeding frame | 〇 |
| 19. PLC and electronic cam control the timing of the whole machine | 〇 |
| 20. Blow-suction dual-purpose vacuum pump of German Becker brand | 〇 |
| 21. If the paper is not in place, it can force the gripper open and close | 〇 |
| Die-cutting Unit | |
| 01. The entire machine casting is made of QT-700-2 nodular cast iron | 〇 |
| 02. Imported worm gear, worm gear and 40cr crankshaft | 〇 |
| 03. A complete set of high-tech carbon fiber gripper bars and positioning structure, fine steel small gripper teeth and supporting gripper plates. The gripper bars adopt an adjustable gripper bar structure | 〇 |
| 04. Imported main drive chain | 〇 |
| 05. Servo control system is adopted for the rear positioning of gripper bar, and the accuracy of each gripper bar can be adjusted by PLC touch screen button to ensure the accuracy of gripper bar, with permanent accuracy of ±0.075mm (Invention Patent) | 〇 |
| 06. Imported intermittent splitter | 〇 |
| 07. Imported synchronous belt and pulley drive | 〇 |
| 08. Imported torque limiting overload protector | 〇 |
| 09. Imported pneumatic clutch brake device | 〇 |
| 10. Pressure regulating device, which can realize accurate control of pressure through PLC touch screen buttons | 〇 |
| 11. Die-cutting pressure is measured directly and accurately by deformation measuring device and displayed on the human-machine interface | 〇 |
| 12. Die-cutting base plate and die mould rotary device | 〇 |
| 13. The 15mm die-cut steel backing plate is equipped with a 5mm combined lower backing plate center positioning structure +/-0.9mm vertical and horizontal fine-tuning device, which makes plate changing fast and simple, reducing the time for plate replenishment | 〇 |
| 14. The connection between the die cutting plate and the chase adopts the form of grasping snail and screws, adopt central positioning system, which is fast and accurate | 〇 |
| 15. The die-cutting frame has a fine-tuning function to facilitate the adjustment of the frame | 〇 |
| 16. The die-cutting chase and the lower mat are locked by the Japan SMC gas regulator, which can prevent improper locking of the upper frame caused by human error during installation | 〇 |
| 17. The main motor utilizes servo motor transmission | 〇 |
| 18. Japan SMC air pressure detection device, low air pressure alarm | 〇 |
| 19. Equipped with an air storage tank to ensure the stability of the air pressure of the whole machine | 〇 |
| 20. The 20-temperature zones independent control system can effectively control the heating temperature of the heating plate, ensuring that the temperature control of the entire heating system is more balanced and stable | 〇 |
| 21. The whole machine adopts a centralized automatic oil supply system to ensure that the transmission parts are not short of oil | 〇 |
| 22. Automatic oil pumping circulation cooling device ensures the lubrication of the main machine during long-term high-speed operation and maintains the normal temperature of the lubricating oil of the main machine | 〇 |
| Stripping Unit | |
| 01. Upper waste transmission mechanism | 〇 |
| 02. Users can choose whether to use the stripping function by lifting upper stripping frame | 〇 |
| 03. The upper stripping frame adopts pneumatic quick lock device | 〇 |
| 04. Pull-out drive mechanism with quick locking function for intermediate negative stripping frame | 〇 |
| 05. The installation of the middle stripping board adopts the center line quick positioning installation method, and the stripping board can be quickly installed. The upper and lower frames operate while the middle frame remains stationaryso there are fewer connection points, and the plate is not prone to coming apart | 〇 |
| 06. Center positioning is adopted for the lower stripping frame | 〇 |
| 07. Lower stripping transmission mechanism | 〇 |
| 08. High efficiency and smooth CAM movement curve drives large moving angle stripping and full stripping tools to ensure stripping at high speed | 〇 |
| 09. Stripping frame has micro-adjustment device with digital display | 〇 |
| 10. Stripping gripper bar positioning device | 〇 |
| Blanking Unit | |
| 01. Quick lock system for blanking | 〇 |
| 02. Fine tunning device with numerical meter | 〇 |
| 03. Center line positioning system for blanking tools | 〇 |
| 04. Pneumatic lifting device for upper frame of blanking | 〇 |
| 05. Pull-out full upper blanking frame, quick plate change and easy operation | 〇 |
| 06. Automatic paper inserting and counting device | 〇 |
| 07. Automatic non-stop paper collecting device | 〇 |
| 08. Automatic delivery device can meet the European standard 1200*800mm pallet | 〇 |
| 09. Insert sucker device with automatic selection according to paper size | 〇 |
| 10. The constant leveling system (NTC) : There may be warping and unevenness at the top of the finished product stack, which can be solved by adjusting the top surface height of finished products to increase or reduce the pressure | 〇 |
| 11. Automatic transfer device for stacking paper pallets | 〇 |
| 12. Waste edge conveying device | 〇 |
| 13. Servo-driven damping brush | 〇 |
| 14. Automatic separator page inserting device | 〇 |
| 15. Non-stop sampling device | 〇 |
| Electrical unit | |
| 01. Self-developed PLC control system(Invention Patent) | 〇 |
| 02. The die-cutting unit and the delivery unit adopt 10.4-inch and 7-inch Germany Siemens touch screens | 〇 |
| 03. The machine adopts Germany Moeller brand relays, AC contactors, air switches and buttons, to ensure the stability and reliability of electrical parts | 〇 |
| 04. The machine adopts Japanese Omron brand photoelectric switch, optical fiber, encoder and sensor, to ensure the accuracy and stability of electrical detection of each part of the action | 〇 |
Note: This allocation sheet is for reference only, the formal allocation sheet is subject to the contract. Standard configuration: 〇; Optional: △
| Model | BHT-2S1060RRSCE |
| Function | 1. deep embossing+deep embossing 2. deep embossing+die cutting+stripping+blanking |
| Max. Sheet Size | 1060×760mm |
| Min. Sheet Size | 400×350mm |
| Max. Cutting Size | 1060×745mm |
| Max. Embossing Size | 1060×740mm |
| Min. Gripper Margin | 9-17mm |
| Min. Width of Double Cuts | 5mm |
| Inner Chase Size | 1080×790mm |
| Stock Range | Cardboard: 80-2000g/m2,0.1-2mm Corrugated board: ≤4mm |
| Die Cutting Accuracy | ≤±0.075mm |
| Embossing Accuracy | ≤±0.075mm |
| Max. Die Cutting Force | Press1: 600T, Press2: 600T |
| Max. Working Speed | 7200s/h |
| Max. Feeder Pile Height | 1800mm(With pallet) |
| Max. Pile Height at Feeder-Non-stop Mode | 1520mm(With pallet) |
| Max. Delivery Pile Height | 1580mm(With pallet) |
| Electric-heated System | 20 Heating zones, 40-180℃Adjustable |
| Press 1 System | Equipped with electric heating system |
| Press 2 System | Equipped with die cutting+Stripping+Blanking |
| Full Load Wattage | 96KW |
| Air Requirement | Pressure: 0.6-0.7Mpa, Flow: ≥1m3/min |
| Net Weight of Machine | 46T |
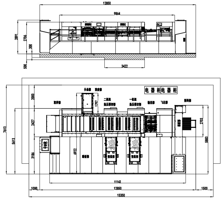
| Machine Dimensions (Including Die Preloader) | 12850×7613×2891mm(L×W×H) (L: paper prepared track included, W: platform included) |
